Logo Atingo Retourner sur la page d'accueil
alt=

Bâtiment accessible – espace de service : les commerces

Vous êtes ici :
alt= © Guide d’aide à la conception d’un bâtiment accessible – CAWaB

Consulter l’extrait du Guide d’aide à la conception d’un bâtiment accessible expliquant comment réaliser un commerce accessible (PDF – 179 ko)

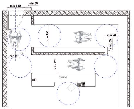
Aperçu des caractéristiques indispensables

  • quota : min. 1 caisse avec passage large et 5% du nombre total des caisses
  • aires de rotation : min. 150 cm de diamètre, libres de tout obstacle
  • largeur de circulation : min. 150 cm
  • réduction ponctuelle : 90 cm sur max. 50 cm de long
  • largeur de circulation à la caisse : min. 120 cm
  • largeur de libre passage de toute porte : min. 85 cm
  • distance latérale libre du côté de la poignée porte fermée : min. 50 cm

Mots clés : commerce, magasin, grande surface, supermarché

Consulter le guide complet au format PDF (36,3 Mo)